MJE

Pronto

Fazenda Boa Vista - Porto Feliz - SP

Ano de construção: 2021

Condomínio Fazenda Boa Vista – Porto Feliz/SP

Residência

Diferenciais
diferenciais

Sobre o projeto

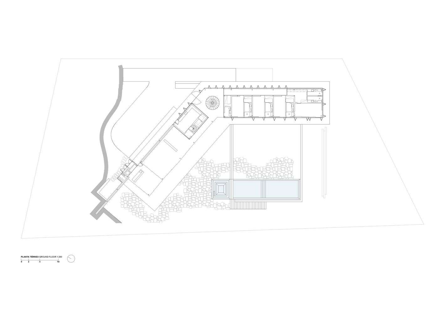
A residência MJE foi projetada em um terreno de declive acentuado, aproveitando ao máximo a vista para o horizonte, o lago e a paisagem montanhosa ao redor. O projeto busca uma integração harmoniosa com o terreno e a paisagem, desenvolvendo uma casa de um único pavimento distribuída em dois blocos angulados. Esses blocos criam uma volumetria que otimiza a orientação solar e oferece privacidade em relação ao vizinho próximo.

A casa se destaca por sua estrutura em um grande platô, com muros de pedra contrastando com a leveza do volume superior. A fachada é revestida por painéis de madeira freijó, que permitem controle da luz natural e trazem dinamismo ao design. No interior, a integração com o exterior é fundamental, com áreas sociais que se abrem para os jardins e a piscina.

O projeto também inclui elementos marcantes, como a suíte máster em balanço sobre o terreno e uma escada em espiral de caráter escultórico. Além disso, o projeto de marcenaria e interiores foi desenvolvido pelo próprio escritório, garantindo uma coerência estética em toda a residência.


galeria

localização

Conheça o empreendimento

O condomínio Fazenda Boa Vista é um dos mais exclusivos e renomados empreendimentos de luxo do Brasil, localizado em Porto Feliz, São Paulo. Desenvolvido pela JHSF, oferece uma combinação única de natureza, sofisticação e qualidade de vida. Com mais de 12 milhões de metros quadrados, o condomínio inclui infraestrutura completa, como campos de golfe projetados por profissionais de renome, clube de polo, centros equestres, quadras de tênis, restaurantes, além de um hotel e spa do grupo Fasano. Projetado para integrar a natureza com o conforto, a Fazenda Boa Vista conta com amplos lotes e residências de alto padrão, que se destacam pelo design arquitetônico e paisagismo. O empreendimento valoriza a privacidade, segurança e o lazer, criando um ambiente ideal para aqueles que buscam tranquilidade em meio à natureza, sem abrir mão do luxo e da conveniência. Esse condomínio se tornou referência em qualidade de vida e bem-estar, atraindo moradores que buscam um refúgio sofisticado perto da capital paulista. Destaque no ARCHDAILY BR

Condomínio Fazenda Boa Vista – Porto Feliz/SP

WazeGoogle Maps
Fale conosco

Fale agora mesmo
com um consultor