RFC

Pronto

São Paulo - SP

Ano de construção: 2018

São Paulo/SP

Residência

Diferenciais
diferenciais

Sobre o projeto

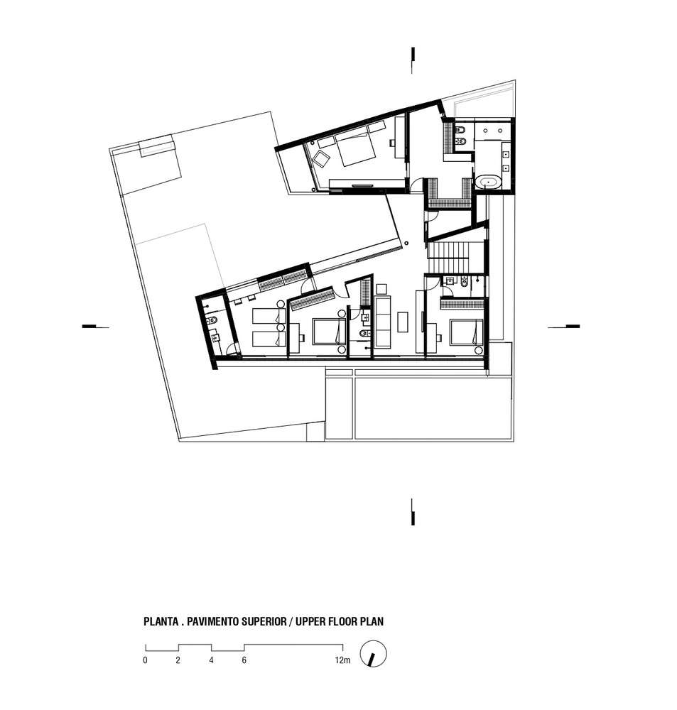
Este projeto residencial, localizado próximo ao parque do Ibirapuera em São Paulo, foi desenvolvido para uma família com quatro filhos pequenos que buscava simplicidade e praticidade. Com um terreno plano de 21×21 metros, a casa foi planejada para ser compacta, mas ao mesmo tempo fortemente conectada às áreas verdes externas, valorizando a integração entre os espaços internos e a natureza.

 

A estrutura metálica da construção permitiu a criação de amplas áreas sociais no térreo, totalmente abertas e transparentes, ligadas ao jardim, enquanto o pavimento superior utiliza uma cobertura leve de madeira OSB impermeabilizada. A casa é dividida em dois volumes principais: um voltado para a rua, onde ficam os ambientes sociais e os dormitórios dos filhos, e outro na parte posterior, que abriga a cozinha, a varanda e o dormitório do casal. Entre os dois volumes, um pátio ajardinado funciona como elemento de ligação.

 

A cozinha tem papel central, integrando-se harmoniosamente com a varanda e o restante das áreas sociais. Nos fundos, uma pequena piscina complementa o espaço, junto com um volume revestido de madeira que abriga sauna e vestiário. O projeto também incorpora soluções sustentáveis, como placas fotovoltaicas, placas solares e cobertura verde, refletindo as preocupações ambientais da família.

 

Projeto em destaque no ARCHDAILY BR


galeria

Fale conosco

Fale agora mesmo
com um consultor